物件詳細情報








エレベーターホール

エントランスホール1

エントランスホール2

事務室

車寄せ


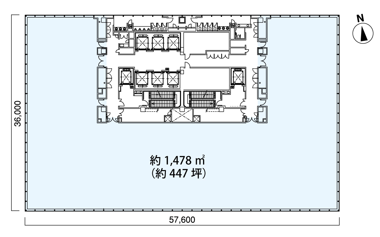
基準階平面図
チェックを入れてお問い合わせ画面へ進むと
対象物件がフォームに追加されます。
2025年12月11日時点
HISTORY
平日 9:15~17:45
0120-339-520